actualizando información
logo donpiso

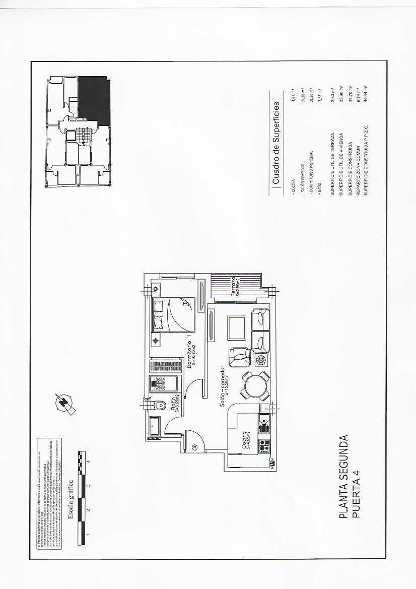
Apartamento en venta. Nueva Promoción de viviendas en Las Lagunas de Mijas Costa. Apartamento en segunda planta de un dormitorio, un baño y terraza.

Cód. (297090)

Cerca del Carrefour de Las Lagunas    Ver mapa

190.000 €
  • 46 m²
  • 1 hab
  • 1 Baño
  • Ascensor
  • Terraza

Descripción

Nueva Promoción en Las Lagunas de Mijas Costa (MÁLAGA). Si estás buscando un espacio perfecto para vivir o invertir, este impresionante apartamento de OBRA NUEVA ofrece un diseño contemporáneo combinado con funcionalidad es la opción ideal. Posibilidad de adquirir trastero en el mismo edificio.
La propiedad cuenta con un amplio dormitorio que dispone de armario empotrado, un baño, cocina abierta al salón comedor y terraza.

El salón ha sido diseñado para disfrutar de momentos de ocio y entretenimiento creando un ambiente acogedor y relajante. La cocina integrada en el salón. Las viviendas de esta promoción no se entregan con muebles de cocina, aunque sí se entregarán con revestimientos alicatados a partir de la altura de los muebles bajos.
El baño irá alicatado en gres porcelánico de primera calidad, con inserciones ...

Ver más información

Nueva Promoción en Las Lagunas de Mijas Costa (MÁLAGA). Si estás buscando un espacio perfecto para vivir o invertir, este impresionante apartamento de OBRA NUEVA ofrece un diseño contemporáneo combinado con funcionalidad es la opción ideal. Posibilidad de adquirir trastero en el mismo edificio.
La propiedad cuenta con un amplio dormitorio que dispone de armario empotrado, un baño, cocina abierta al salón comedor y terraza.

El salón ha sido diseñado para disfrutar de momentos de ocio y entretenimiento creando un ambiente acogedor y relajante. La cocina integrada en el salón. Las viviendas de esta promoción no se entregan con muebles de cocina, aunque sí se entregarán con revestimientos alicatados a partir de la altura de los muebles bajos.
El baño irá alicatado en gres porcelánico de primera calidad, con inserciones decorativas en una de las paredes. Saneamientos de marca Roca o similar, con mueble de lavabo y grifería monomando y plato de ducha con mampara.

En cuanto a la distribución y la calidad de los acabados, los apartamentos de este nuevo edificio serán de alta calidad, que garantizan la durabilidad y el confort. Los suelos gres porcelánicos, las ventanas de doble acristalamiento marca climalit o similar que ayudan a mantener la temperatura ideal en el interior, haciendo que la climatización sea eficiente tanto en verano como en invierno. Sistema de agua caliente individual y sostenible, con sistema de alta eficiencia energética, que asegura una notable reducción del gasto energético, así como emisiones de CO2 a la atmósfera, aerotermia o solar con acumulación.
Carpintería interior en madera maciza con chapado en Melamina CPL y puerta de entrada de la vivienda será chapada en madera y blindada con tres puntos de anclaje.
Interruptores de marca Hager, serie Lumina o similar, con interruptores de luz y enchufes en todas las dependencias y luminaria de Led empotradas en techos de todas las estancias. Además contará con preinstalación de aire acondicionado.

En la zona de LAS LAGUNAS, tendrás acceso a una amplia gama de servicios. A pocos minutos a pie, encontrarás supermercados, colegios, y centros de salud, todos al alcance para facilitar tu día a día. El área está bien conectada con paradas de autobús cercanas, y a solo unos minutos en coche, podrás acceder a la autovía y disfrutar de la proximidad a localidades cercanas como Fuengirola y Marbella. Asimismo, la vida de ocio es rica y variada, con restaurantes, tiendas y actividades recreativas disponibles en la zona, creando un ambiente perfecto para disfrutar de la vida en la Costa del Sol. No dejes pasar la oportunidad de conocer este exclusivo apartamento; ¡te encantará!
PARA PROPIETARIOS:
¿Necesitas vender para comprar? te ayudamos coordinándolo todo y con hipoteca cambio de casa.
¿Tienes prisa en vender? te ofrecemos una venta rápida con todas las garantías.
¿Necesitas una hipoteca? en donpiso la encuentras y en condiciones preferentes.
¿Herencias?, ¿Divorcios?, te ayudamos y coordinamos todo.
Infórmate: 952 59 26 20 - fuengirola@donpiso.com

Distribución

  • Habitación Doble
  • Salón
  • Cocina
  • Baño
  • Terraza

Características principales

  • Oportunidad
  • Piso
  • Apartamento
  • 46 m²
  • 1 Habitación
  • 1 Baño
  • Ascensor
  • Antigüedad 0 años
  • Planta 2ª
  • Terraza

Otras características

  • Ventanas de aluminio

Certificado energético

  • Certificado en trámite

Ubicación

Cerca del Carrefour de Las Lagunas
Las Lagunas, Mijas

*Ubicación aproximada

Precio

  • Precio del inmueble: 190.000 €
  • Precio por m²: 4.091 eur / m²

* Las superficies expresadas en esta página tienen carácter descriptivo y son aproximadas. Los precios pueden ser susceptibles de modificación sin previo aviso.

* El PVP indicado no incluye impuestos ni gastos de Escritura.

Cód. (297090)

Apartamento en venta. Nueva Promoción de viviendas en Las Lagunas de Mijas Costa. Apartamento en segunda planta de un dormitorio, un baño y terraza.

190.000 €

  • 46 m²
  • 1 hab
  • 1 Baño
  • Ascensor
  • Terraza

Dinos cuándo quieres visitarlo o si quieres más información

Contactar

Oficina donpiso Fuengirola Centro
Calle Marbella , 30
29640 Fuengirola (MALAGA)

Cálculo hipoteca

Consigue tu hipoteca con un extra para reformas solo con donpiso.

Precio del inmueble: 190.000 €
Impuestos y gastos: 42.240 € 10%
0% 20%

Impuestos y gastos aproximados     + info.

Precio + gastos: 394.240 €

Dinero que aportas de tus ahorros

0€ 300.000€

Importe del préstamo

Se recomienda no superar el 80 % del precio de compra.     + info.

Plazo del préstamo

0 años 40 años

Tipo de interés

0 % 10%

Tipo de interés     + info.

Tu cuota mensual: 0 €

Este resultado es orientativo, según los números que has introducido.

¿Hay algún error en este anuncio?

Infórmanos para corregirlo y ayudar a otros usuarios.