actualizando información
logo donpiso

Local Industrial en venta. Local / Nave muy amplio con dos plantas, paralela al Mercadona. Excelente oportunidad para inversores o Pymes.

Cód. (297115)

Zona paralela a la Avda. Pirineos con Mercadona.    Ver mapa

145.000 €
  • 332 m²

Descripción

Se vende amplio local de grandes dimensiones, distribuido en dos plantas, con excelente visibilidad y acceso directo desde una de las vías principales de Barbastro.

El inmueble destaca por su versatilidad interior, su altura y su distribución funcional, lo que lo convierte en una opción ideal para múltiples actividades profesionales, comerciales o de servicios (previa consulta urbanística).

Distribución: Planta Baja (207,92 m²) Espacio diáfano con gran capacidad, Puerta metálica a calle principal. Ideal como zona de atención al público, exposición, taller o almacén operativo.

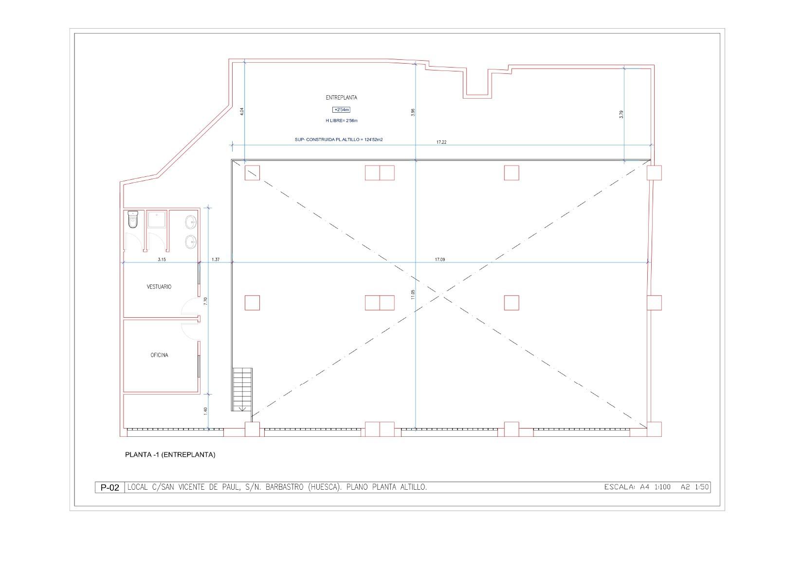
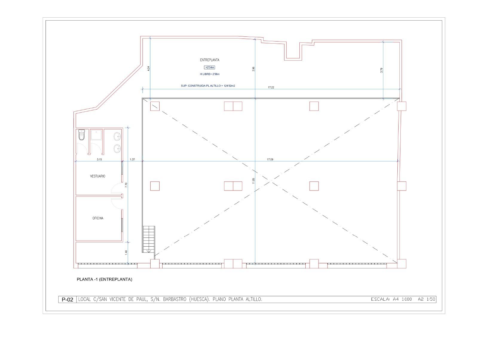
Planta Alta / Altillo (124,52 m²) Varias estancias independientes,: Despacho, Vestuarios, Baño, Zona de almacén. Perfecta como oficinas, zona administrativa o apoyo a la actividad principal.

El inmueble resulta idóneo (previa aut ...

Ver más información

Se vende amplio local de grandes dimensiones, distribuido en dos plantas, con excelente visibilidad y acceso directo desde una de las vías principales de Barbastro.

El inmueble destaca por su versatilidad interior, su altura y su distribución funcional, lo que lo convierte en una opción ideal para múltiples actividades profesionales, comerciales o de servicios (previa consulta urbanística).

Distribución: Planta Baja (207,92 m²) Espacio diáfano con gran capacidad, Puerta metálica a calle principal. Ideal como zona de atención al público, exposición, taller o almacén operativo.

Planta Alta / Altillo (124,52 m²) Varias estancias independientes,: Despacho, Vestuarios, Baño, Zona de almacén. Perfecta como oficinas, zona administrativa o apoyo a la actividad principal.

El inmueble resulta idóneo (previa autorización municipal) para actividades como: Oficinas profesionales o técnicas, Centro de servicios (consultoría, ingeniería, formación, etc.), Comercio especializado o showroom, Almacén logístico urbano, Actividad artesanal o taller no molesto, Empresa de distribución, montaje o servicios técnicos, Centro de trabajo para autónomos o pymes.

VENTAJAS DESTACADAS: Gran superficie total, Dos plantas funcionales, Buena accesibilidad y visibilidad, Espacios ya compartimentados en planta alta, Ideal para inversión o actividad propia.

Para más información o visita, no dudes en contactar. Excelente oportunidad para profesionales, empresas o inversores que buscan un espacio amplio y versátil en Barbastro. Precio muy competitivo por m² en la zona..
PARA PROPIETARIOS:
¿Necesitas vender para comprar? te ayudamos coordinándolo todo y con hipoteca cambio de casa.
¿Tienes prisa en vender? te ofrecemos una venta rápida con todas las garantías.
¿Necesitas una hipoteca? en donpiso la encuentras y en condiciones preferentes.
¿Herencias?, ¿Divorcios?, te ayudamos y coordinamos todo.
Infórmate: 974 30 8556 - barbastro@donpiso.com

Distribución

  • 2 General

Características principales

  • Local Industrial
  • A reformar
  • 332 m²
  • Antigüedad 52 años

Otras características

  • Orientación Noreste
  • Luminoso
  • Sol de tarde
  • Exterior a Calle

Certificado energético

  • Certificado en trámite

Plano

Ubicación

Zona paralela a la Avda. Pirineos con Mercadona.
Barbastro, Barbastro

*Ubicación aproximada

Precio

  • Precio del inmueble: 145.000 €
  • Precio por m²: 436 eur / m²

* Las superficies expresadas en esta página tienen carácter descriptivo y son aproximadas. Los precios pueden ser susceptibles de modificación sin previo aviso.

* El PVP indicado no incluye impuestos ni gastos de Escritura.

Cód. (297115)

Local Industrial en venta. Local / Nave muy amplio con dos plantas, paralela al Mercadona. Excelente oportunidad para inversores o Pymes.

145.000 €

  • 332 m²

Dinos cuándo quieres visitarlo o si quieres más información

Contactar

Oficina donpiso Barbastro
Avenida Del Cinca, 18
22300 Barbastro (HUESCA)

Cálculo hipoteca

Consigue tu hipoteca con un extra para reformas solo con donpiso.

Precio del inmueble: 145.000 €
Impuestos y gastos: 42.240 € 10%
0% 20%

Impuestos y gastos aproximados     + info.

Precio + gastos: 394.240 €

Dinero que aportas de tus ahorros

0€ 300.000€

Importe del préstamo

Se recomienda no superar el 80 % del precio de compra.     + info.

Plazo del préstamo

0 años 40 años

Tipo de interés

0 % 10%

Tipo de interés     + info.

Tu cuota mensual: 0 €

Este resultado es orientativo, según los números que has introducido.

¿Hay algún error en este anuncio?

Infórmanos para corregirlo y ayudar a otros usuarios.