Casa Aislada en venta. Casa de obra nueva personalizable con aerotermia, ventanas doble acristalamiento en pvc, suelos y alicatados porcelanicos.
Cód. (297476)Casa nueva en el centro de Santa agnes de malanyanes Ver mapa
- 150 m²
- 4 hab
- 2 Baños
- Terraza
Descripción
La vivienda tipo incluida dentro del proyecto se ejecuta en construcción tradicional, lo que garantiza mayor durabilidad y resistencia en el tiempo.
La empresa constructora ofrece no solo una vivienda funcional y estéticamente cuidada, sino también la tranquilidad de que cada etapa del proceso se realiza con calidad, transparencia y confianza. Pudiendo personalizarla al 100%.
Para personalizar cada hogar, se pone a disposición del cliente una amplia y cuidada selección de acabados: materiales, revestimientos, colores, carpinterías y texturas, con múltiples combinaciones que permiten adaptar cada rincón de su nuevo hogar a su estilo.
Las características principales incluidas son:
- Aerotermia para climatización eficiente
- Ventanas de PVC con doble acr ...
La vivienda tipo incluida dentro del proyecto se ejecuta en construcción tradicional, lo que garantiza mayor durabilidad y resistencia en el tiempo.
La empresa constructora ofrece no solo una vivienda funcional y estéticamente cuidada, sino también la tranquilidad de que cada etapa del proceso se realiza con calidad, transparencia y confianza. Pudiendo personalizarla al 100%.
Para personalizar cada hogar, se pone a disposición del cliente una amplia y cuidada selección de acabados: materiales, revestimientos, colores, carpinterías y texturas, con múltiples combinaciones que permiten adaptar cada rincón de su nuevo hogar a su estilo.
Las características principales incluidas son:
- Aerotermia para climatización eficiente
- Ventanas de PVC con doble acristalamiento, que mejoran el aislamiento térmico y acústico
- Solados y alicatados porcelánicos, de gran calidad y fácil mantenimiento
- Estructura de hormigón y paredes de ladrillo, con revestimiento aislante y acabado exterior en monocapa.
- Cocina y lavabos incluidos
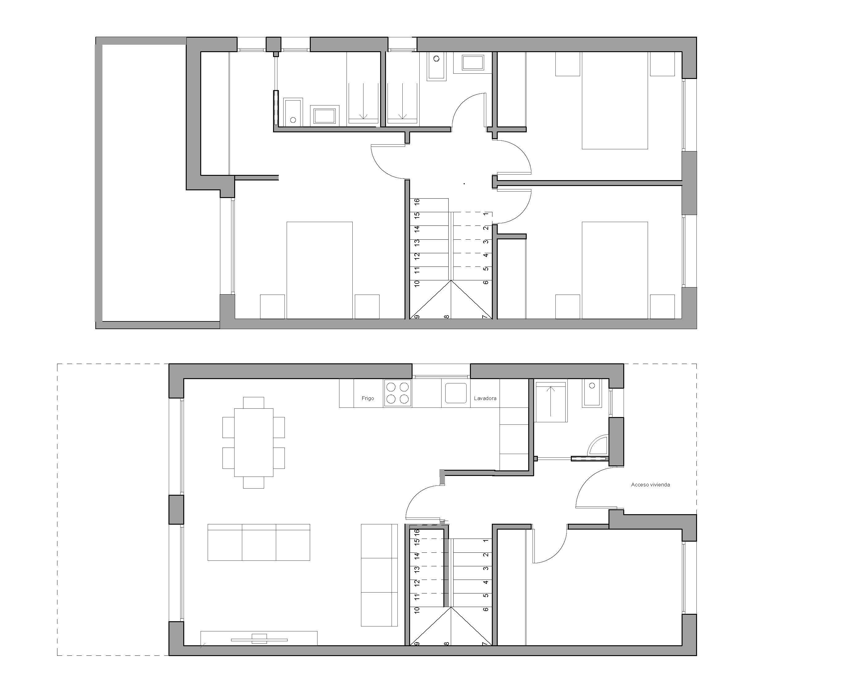
La distribución interior es 100% personalizable, sin coste adicional siempre que se mantengan los 150 metros2
de superficie, en dos plantas.
En el caso de querer ampliar la superficie el metro2 extra se valora a 1500m2
Parcela y extras:
- Terreno de 454 m2
- Muro frontal incluido de hasta 1 metro de altura, terminado con los mismos acabados de la vivienda.
- Piscina y parking NO incluidos en el precio base
PARA PROPIETARIOS:
¿Necesitas vender para comprar? te ayudamos coordinándolo todo y con hipoteca cambio de casa.
¿Tienes prisa en vender? te ofrecemos una venta rápida con todas las garantías.
¿Necesitas una hipoteca? en donpiso la encuentras y en condiciones preferentes.
¿Herencias?, ¿Divorcios?, te ayudamos y coordinamos todo.
Infórmate: 680 720 850 - matarocentre@donpiso.com
Distribución
- 2 Habitaciones Dobles
- 2 Habitaciones Simples
- Comedor
- Cocina
- 2 Baños
- Terraza
Características principales
- Casa
- Casa Aislada
- Para entrar a vivir
- 150 m²
- 4 Habitaciones
- 2 Baños
- Antigüedad 0 años
- Terraza
- Parcela 454 m²
Otras características
- Muy Luminoso
- Sol todo el día
- Aire acondicionado frío/calor
- Calefacción central
- Ventanas de aluminio
Certificado energético
-
Consumo
A
105 kW h m² / año
-
Emisiones
A
55 kg CO2 m² / año
Ver etiqueta calificación energética
* Calificación de eficiencia energética de vivienda terminado según RD 235/2013 de 5 de Abril
Reformas al mejor precio
Hipoteca que incluye la reforma.
Financiación especial.
Ubicación
Casa nueva en el centro de Santa agnes de malanyanes
La Roca del Vallès, Roca Del Vallès (La)
*Ubicación aproximada
Precio
- Precio del inmueble: 487.000 €
- Precio por m²: 3.247 eur / m²
* Las superficies expresadas en esta página tienen carácter descriptivo y son aproximadas. Los precios pueden ser susceptibles de modificación sin previo aviso.
* El PVP indicado no incluye impuestos ni gastos de Escritura.
Consigue tu hipoteca con un extra para reformas solo con donpiso.
Impuestos y gastos aproximados + info.
Dinero que aportas de tus ahorros
Importe del préstamo
Se recomienda no superar el 80 % del precio de compra. + info.
Plazo del préstamo
Este resultado es orientativo, según los números que has introducido.
¿Hay algún error en este anuncio?
Infórmanos para corregirlo y ayudar a otros usuarios.