actualizando información
logo donpiso

Casa Aislada en venta. Casa personalizable 100% con vistas a mar, aerotermia, ventanas doble acristalamiento en pvc, suelos y alicatados porcelanicos

Cód. (299200)

A 5 minutos del centro de Argentona con vistas a mar!    Ver mapa

570.000 €
590.000 € Bajada de precio
  • 150 m²
  • 4 hab
  • 2 Baños

Descripción

ARGENTONA (BARCELONA). En el corazón de esta encantadora localidad se encuentra una magnífico terreno para construir a tu gusto la casa de tus sueños.

TU VIVIENDA UNIFAMILIAR A MEDIDA CON VISTAS A MAR!!

La vivienda tipo incluida dentro del proyecto se ejecuta en construcción tradicional, lo que garantiza mayor durabilidad y resistencia en el tiempo.
La empresa constructora ofrece no solo una vivienda funcional y estéticamente cuidada, sino también la tranquilidad de que cada etapa del proceso se realiza con calidad, transparencia y confianza. Pudiendo personalizarla al 100%.

Para personalizar cada hogar, se pone a disposición del cliente una amplia y cuidada selección de acabados: materiales, revestimientos, colores, carpinterías y texturas, con múltiples combinaciones que permiten adaptar cada rincón de ...

Ver más información

ARGENTONA (BARCELONA). En el corazón de esta encantadora localidad se encuentra una magnífico terreno para construir a tu gusto la casa de tus sueños.

TU VIVIENDA UNIFAMILIAR A MEDIDA CON VISTAS A MAR!!

La vivienda tipo incluida dentro del proyecto se ejecuta en construcción tradicional, lo que garantiza mayor durabilidad y resistencia en el tiempo.
La empresa constructora ofrece no solo una vivienda funcional y estéticamente cuidada, sino también la tranquilidad de que cada etapa del proceso se realiza con calidad, transparencia y confianza. Pudiendo personalizarla al 100%.

Para personalizar cada hogar, se pone a disposición del cliente una amplia y cuidada selección de acabados: materiales, revestimientos, colores, carpinterías y texturas, con múltiples combinaciones que permiten adaptar cada rincón de su nuevo hogar a su estilo.

Las características principales incluidas son:

- Aerotermia para climatización eficiente
- Ventanas de PVC con doble acristalamiento, que mejoran el aislamiento térmico y acústico
- Solados y alicatados porcelánicos, de gran calidad y fácil mantenimiento
- Estructura de hormigón y paredes de ladrillo, con revestimiento aislante y acabado exterior en monocapa.
- Cocina y lavabos incluidos

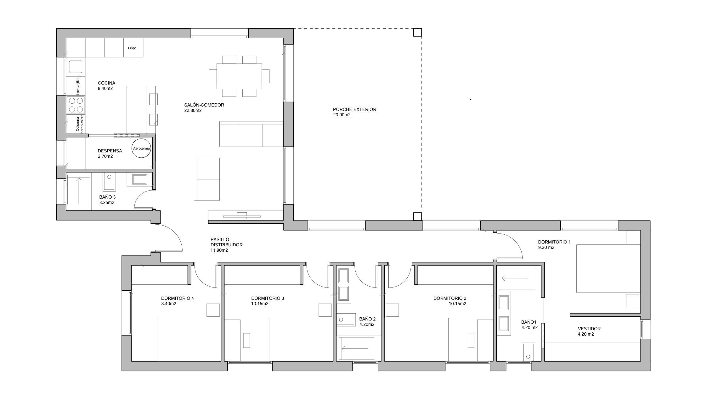
La distribución interior es 100% personalizable, sin coste adicional siempre que se mantengan los 150 metros2
de superficie, en dos plantas.
En el caso de querer ampliar la superficie el metro2 extra se valora a 1500m2


Parcela y extras:
- Terreno de 938 m2
- Muro frontal incluido de hasta 1 metro de altura, terminado con los mismos acabados de la vivienda.
- Piscina y parking NO incluidos en el precio base

En cuanto a los medios de transporte, ARGENTONA cuenta con una buena conexión de autobuses que facilitan el acceso a Barcelona y otras localidades cercanas. La estación de tren más cercana se encuentra a pocos minutos en coche, haciendo que los desplazamientos sean cómodos y rápidos. La localidad de Argentona es conocida por su entorno natural, con diversas rutas de senderismo y espacios verdes ideales para disfrutar de la naturaleza. Además, cuenta con todos los servicios necesarios: colegios, mercados, zonas de ocio y restauración, lo que la convierte en un lugar perfecto para vivir y establecerse. La combinación de tranquilidad y cercanía a la ciudad hace que esta propiedad sea una oportunidad única en el mercado.
PARA PROPIETARIOS:
¿Necesitas vender para comprar? te ayudamos coordinándolo todo y con hipoteca cambio de casa.
¿Tienes prisa en vender? te ofrecemos una venta rápida con todas las garantías.
¿Necesitas una hipoteca? en donpiso la encuentras y en condiciones preferentes.
¿Herencias?, ¿Divorcios?, te ayudamos y coordinamos todo.
Infórmate: 680 720 850 - matarocentre@donpiso.com

Distribución

  • 4 Habitaciones Dobles
  • Comedor
  • Cocina
  • 2 Baños
  • Lavadero
  • Buhardilla

Características principales

  • Casa
  • Casa Aislada
  • Para entrar a vivir
  • Reformado
  • 150 m²
  • 4 Habitaciones
  • 2 Baños
  • Antigüedad 1 año
  • Planta 2ª
  • Parcela 938 m²
  • Jardín

Otras características

  • Muy Luminoso
  • Sol todo el día
  • Aire acondicionado frío/calor
  • Calefacción eléctrica
  • Porcelanato
  • Ventanas de aluminio

Certificado energético

  • Consumo A 150 kW h m² / año
  • Emisiones A 45 kg CO2 m² / año

Ver etiqueta calificación energética

* Calificación de eficiencia energética de vivienda terminado según RD 235/2013 de 5 de Abril

Plano

Reformas al mejor precio

Reformas de calidad

Hipoteca que incluye la reforma.

Financiación especial.

Ubicación

A 5 minutos del centro de Argentona con vistas a mar!
Argentona, Argentona

*Ubicación aproximada

Precio

  • Precio del inmueble: 570.000 €
  • Precio por m²: 3.800 eur / m²

* Las superficies expresadas en esta página tienen carácter descriptivo y son aproximadas. Los precios pueden ser susceptibles de modificación sin previo aviso.

* El PVP indicado no incluye impuestos ni gastos de Escritura.

Cód. (299200)

Casa Aislada en venta. Casa personalizable 100% con vistas a mar, aerotermia, ventanas doble acristalamiento en pvc, suelos y alicatados porcelanicos

570.000 €

  • 150 m²
  • 4 hab
  • 2 Baños

Dinos cuándo quieres visitarlo o si quieres más información

Contactar

Oficina donpiso Mataró Centre
Calle Sant Benet, 42
08032 Mataró (BARCELONA)

Cálculo hipoteca

Consigue tu hipoteca con un extra para reformas solo con donpiso.

Precio del inmueble: 570.000 €
Impuestos y gastos: 42.240 € 10%
0% 20%

Impuestos y gastos aproximados     + info.

Precio + gastos: 394.240 €

Dinero que aportas de tus ahorros

0€ 300.000€

Importe del préstamo

Se recomienda no superar el 80 % del precio de compra.     + info.

Plazo del préstamo

0 años 40 años

Tipo de interés

0 % 10%

Tipo de interés     + info.

Tu cuota mensual: 0 €

Este resultado es orientativo, según los números que has introducido.

¿Hay algún error en este anuncio?

Infórmanos para corregirlo y ayudar a otros usuarios.