Casa Aislada en venta. Casa personalizable 100% con vistas a mar, aerotermia, ventanas doble acristalamiento en pvc, suelos y alicatados porcelanicos
Cód. (299200)A 5 minutos del centro de Argentona con vistas a mar! Ver mapa
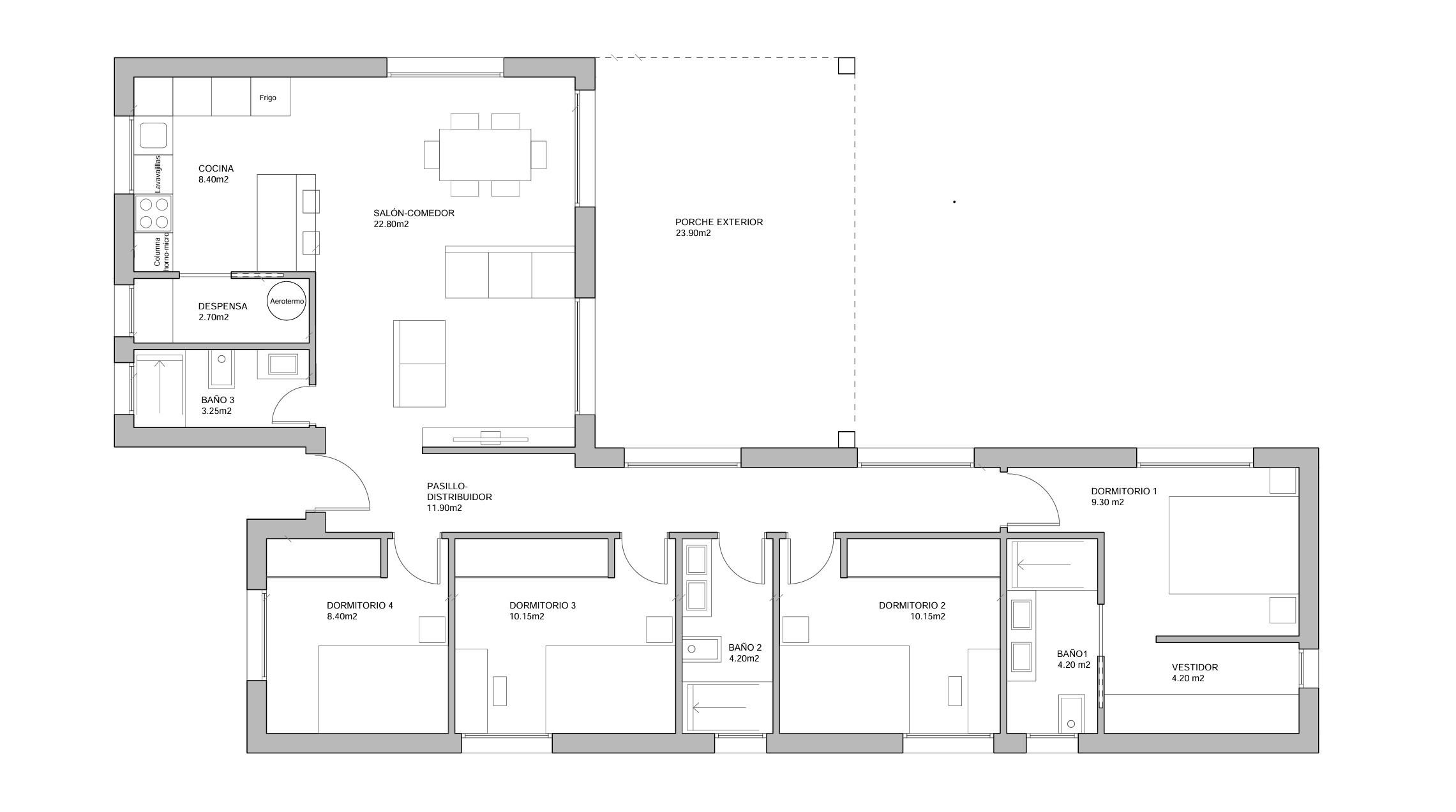
- 150 m²
- 4 hab
- 2 Baños
Descripción
TU VIVIENDA UNIFAMILIAR A MEDIDA CON VISTAS A MAR!!
La vivienda tipo incluida dentro del proyecto se ejecuta en construcción tradicional, lo que garantiza mayor durabilidad y resistencia en el tiempo.
La empresa constructora ofrece no solo una vivienda funcional y estéticamente cuidada, sino también la tranquilidad de que cada etapa del proceso se realiza con calidad, transparencia y confianza. Pudiendo personalizarla al 100%.
Para personalizar cada hogar, se pone a disposición del cliente una amplia y cuidada selección de acabados: materiales, revestimientos, colores, carpinterías y texturas, con múltiples combinaciones que permiten adaptar cada rincón de ...
TU VIVIENDA UNIFAMILIAR A MEDIDA CON VISTAS A MAR!!
La vivienda tipo incluida dentro del proyecto se ejecuta en construcción tradicional, lo que garantiza mayor durabilidad y resistencia en el tiempo.
La empresa constructora ofrece no solo una vivienda funcional y estéticamente cuidada, sino también la tranquilidad de que cada etapa del proceso se realiza con calidad, transparencia y confianza. Pudiendo personalizarla al 100%.
Para personalizar cada hogar, se pone a disposición del cliente una amplia y cuidada selección de acabados: materiales, revestimientos, colores, carpinterías y texturas, con múltiples combinaciones que permiten adaptar cada rincón de su nuevo hogar a su estilo.
Las características principales incluidas son:
- Aerotermia para climatización eficiente
- Ventanas de PVC con doble acristalamiento, que mejoran el aislamiento térmico y acústico
- Solados y alicatados porcelánicos, de gran calidad y fácil mantenimiento
- Estructura de hormigón y paredes de ladrillo, con revestimiento aislante y acabado exterior en monocapa.
- Cocina y lavabos incluidos
La distribución interior es 100% personalizable, sin coste adicional siempre que se mantengan los 150 metros2
de superficie, en dos plantas.
En el caso de querer ampliar la superficie el metro2 extra se valora a 1500m2
Parcela y extras:
- Terreno de 938 m2
- Muro frontal incluido de hasta 1 metro de altura, terminado con los mismos acabados de la vivienda.
- Piscina y parking NO incluidos en el precio base
En cuanto a los medios de transporte, ARGENTONA cuenta con una buena conexión de autobuses que facilitan el acceso a Barcelona y otras localidades cercanas. La estación de tren más cercana se encuentra a pocos minutos en coche, haciendo que los desplazamientos sean cómodos y rápidos. La localidad de Argentona es conocida por su entorno natural, con diversas rutas de senderismo y espacios verdes ideales para disfrutar de la naturaleza. Además, cuenta con todos los servicios necesarios: colegios, mercados, zonas de ocio y restauración, lo que la convierte en un lugar perfecto para vivir y establecerse. La combinación de tranquilidad y cercanía a la ciudad hace que esta propiedad sea una oportunidad única en el mercado.
PARA PROPIETARIOS:
¿Necesitas vender para comprar? te ayudamos coordinándolo todo y con hipoteca cambio de casa.
¿Tienes prisa en vender? te ofrecemos una venta rápida con todas las garantías.
¿Necesitas una hipoteca? en donpiso la encuentras y en condiciones preferentes.
¿Herencias?, ¿Divorcios?, te ayudamos y coordinamos todo.
Infórmate: 680 720 850 - matarocentre@donpiso.com
Distribución
- 4 Habitaciones Dobles
- Comedor
- Cocina
- 2 Baños
- Lavadero
- Buhardilla
Características principales
- Casa
- Casa Aislada
- Para entrar a vivir
- Reformado
- 150 m²
- 4 Habitaciones
- 2 Baños
- Antigüedad 1 año
- Planta 2ª
- Parcela 938 m²
- Jardín
Otras características
- Muy Luminoso
- Sol todo el día
- Aire acondicionado frío/calor
- Calefacción eléctrica
- Porcelanato
- Ventanas de aluminio
Certificado energético
-
Consumo
A
150 kW h m² / año
-
Emisiones
A
45 kg CO2 m² / año
Ver etiqueta calificación energética
* Calificación de eficiencia energética de vivienda terminado según RD 235/2013 de 5 de Abril
Reformas al mejor precio
Hipoteca que incluye la reforma.
Financiación especial.
Ubicación
A 5 minutos del centro de Argentona con vistas a mar!
Argentona, Argentona
*Ubicación aproximada
Precio
- Precio del inmueble: 570.000 €
- Precio por m²: 3.800 eur / m²
* Las superficies expresadas en esta página tienen carácter descriptivo y son aproximadas. Los precios pueden ser susceptibles de modificación sin previo aviso.
* El PVP indicado no incluye impuestos ni gastos de Escritura.
Consigue tu hipoteca con un extra para reformas solo con donpiso.
Impuestos y gastos aproximados + info.
Dinero que aportas de tus ahorros
Importe del préstamo
Se recomienda no superar el 80 % del precio de compra. + info.
Plazo del préstamo
Este resultado es orientativo, según los números que has introducido.
¿Hay algún error en este anuncio?
Infórmanos para corregirlo y ayudar a otros usuarios.