actualizando información
logo donpiso

Apartamento en venta. Don Piso Getxo vende, Amplio y luminoso piso de dos habitaciones completamente exterior en el centro de neguri.

Cód. (300485)

En el parque gernika    Ver mapa

450.000 €
  • 104 m²
  • 2 hab
  • 1 Baño
  • Ascensor

Descripción

Don Piso vende en Exclusiva piso exterior, amplio y muy luminoso en Neguri

Ponemos a la venta este estupendo piso situado en Neguri, una de las zonas residenciales más valoradas por su tranquilidad, entorno agradable y excelente calidad de vida, sin renunciar a la comodidad de tener todos los servicios a pocos minutos: comercios, transporte público, centros educativos, zonas verdes y acceso rápido a las principales vías de comunicación.

La vivienda destaca especialmente por su amplitud y luminosidad, gracias a su condición de completamente exterior, lo que permite la entrada de luz natural durante todo el día y crea un ambiente cálido y acogedor en todas las estancias.

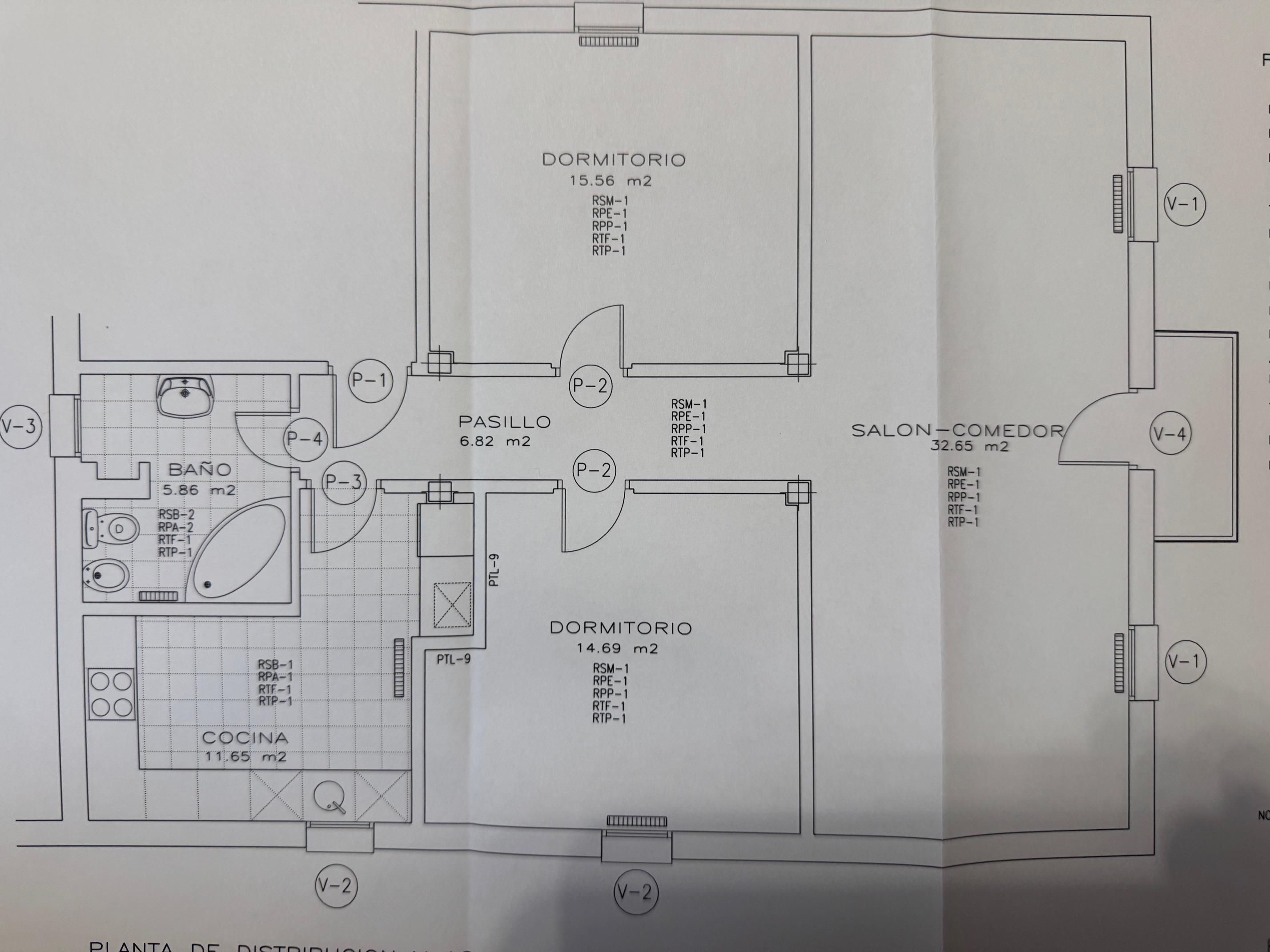
El piso se distribuye de forma muy funcional en:

Dos habitaciones amplias, con espacio suficiente para armarios y zonas de descanso có ...

Ver más información

Don Piso vende en Exclusiva piso exterior, amplio y muy luminoso en Neguri

Ponemos a la venta este estupendo piso situado en Neguri, una de las zonas residenciales más valoradas por su tranquilidad, entorno agradable y excelente calidad de vida, sin renunciar a la comodidad de tener todos los servicios a pocos minutos: comercios, transporte público, centros educativos, zonas verdes y acceso rápido a las principales vías de comunicación.

La vivienda destaca especialmente por su amplitud y luminosidad, gracias a su condición de completamente exterior, lo que permite la entrada de luz natural durante todo el día y crea un ambiente cálido y acogedor en todas las estancias.

El piso se distribuye de forma muy funcional en:

Dos habitaciones amplias, con espacio suficiente para armarios y zonas de descanso cómodas.

Un amplio baño completo.

Cocina independiente, práctica y bien aprovechada, con espacio para el día a día.

Un gran salón, verdadero corazón de la vivienda, ideal para crear diferentes ambientes de estar y comedor, perfecto tanto para la vida familiar como para recibir invitados.

La vivienda fue reformada hace unos años, por lo que se encuentra en muy buen estado de conservación, permitiendo entrar a vivir sin necesidad de realizar grandes inversiones.

Una propiedad ideal para quienes buscan un hogar espacioso, luminoso y tranquilo, en una ubicación privilegiada de Neguri, a pocos pasos del club de Jolaseta.

No dejes pasar la oportunidad de visitar este piso que combina ubicación, comodidad y amplitud.
PARA PROPIETARIOS:
¿Necesitas vender para comprar? te ayudamos coordinándolo todo y con hipoteca cambio de casa.
¿Tienes prisa en vender? te ofrecemos una venta rápida con todas las garantías.
¿Necesitas una hipoteca? en donpiso la encuentras y en condiciones preferentes.
¿Herencias?, ¿Divorcios?, te ayudamos y coordinamos todo.
Infórmate: 94 465 12 12 - getxo@donpiso.com

Distribución

  • 2 Habitaciones Dobles
  • Salón
  • Cocina
  • Baño
  • Pasillo

Características principales

  • Piso
  • Apartamento
  • Para entrar a vivir
  • Reformado
  • 104 m²
  • 2 Habitaciones
  • 1 Baño
  • Ascensor
  • Planta 1ª

Otras características

  • Muy Luminoso
  • Sol todo el día
  • Exterior a Calle
  • Calefacción de gas
  • Parket

Certificado energético

  • Certificado en trámite

Ubicación

En el parque gernika
Neguri, Getxo

*Ubicación aproximada

Precio

  • Precio del inmueble: 450.000 €
  • Precio por m²: 4.327 eur / m²
  • Gastos de comunidad 70 eur / mes

* Las superficies expresadas en esta página tienen carácter descriptivo y son aproximadas. Los precios pueden ser susceptibles de modificación sin previo aviso.

* El PVP indicado no incluye impuestos ni gastos de Escritura.

Cód. (300485)

Apartamento en venta. Don Piso Getxo vende, Amplio y luminoso piso de dos habitaciones completamente exterior en el centro de neguri.

450.000 €

  • 104 m²
  • 2 hab
  • 1 Baño
  • Ascensor

Dinos cuándo quieres visitarlo o si quieres más información

Contactar

Oficina donpiso Getxo
Calle Ibaiondo, 4
48930 Getxo (BIZKAIA)

Cálculo hipoteca

Consigue tu hipoteca con un extra para reformas solo con donpiso.

Precio del inmueble: 450.000 €
Impuestos y gastos: 42.240 € 10%
0% 20%

Impuestos y gastos aproximados     + info.

Precio + gastos: 394.240 €

Dinero que aportas de tus ahorros

0€ 300.000€

Importe del préstamo

Se recomienda no superar el 80 % del precio de compra.     + info.

Plazo del préstamo

0 años 40 años

Tipo de interés

0 % 10%

Tipo de interés     + info.

Tu cuota mensual: 0 €

Este resultado es orientativo, según los números que has introducido.

¿Hay algún error en este anuncio?

Infórmanos para corregirlo y ayudar a otros usuarios.